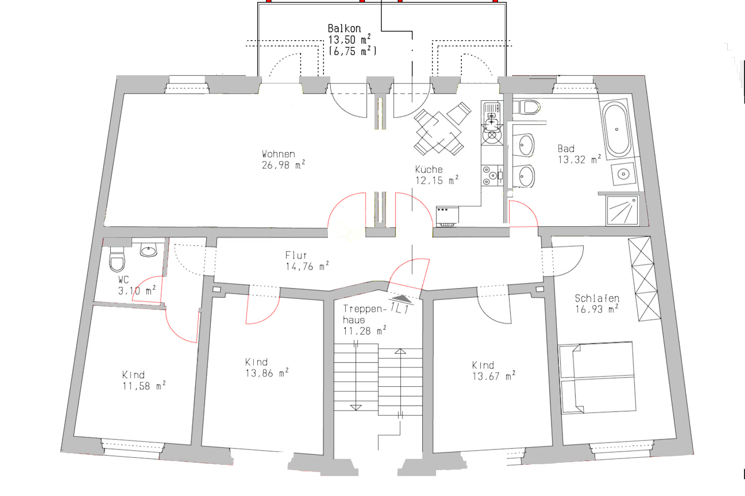
Die Handwerker kommen in der Frauenburgstraße 5 voran. Der Trockenbau ist in allen Wohnungen geschafft, jetzt ist der Einbau der Fußbodenheizungen der nächste Schritt. Weil die Trockenbauwände bereits stehen, ist die künftige Wohnküche mit Schiebetür als Abtrennung gut zu erkennen. Diese Räume werden mit Blick durch bodentiefe Fenster in den grünen Innenhof des Frauenburgkarrees und mit Balkon sicher ein Highlight dieser Familienwohnungen.


Ein paar Wochen sind die Handwerker noch beschäftigt. Und dann im Frühjahr, bevor die neuen Mieter einziehen, werden wir alle Interessierten zu einem Tag der offenen Tür einladen. Ähnlich wie bei der Komplettsanierung der Clara-Zetkin-Straße 47 dürfen Besucher ein paar Stunden lang durchs Haus stromern und mit KommWohnen-Mitarbeiterin ins Gespräch kommen. Und Anmeldungen für die neuen Wohnungen sind natürlich auch willkommen. Konkret wird es sich bei diesen um Fünfraum-Etagenwohnungen handeln, ca. 130 Quadratmeter groß, mit großem Bad und bodengleicher Dusche, drei Kinderzimmern sowie Balkon – ideal für Familien.



Und das könnte zum Beispiel die künftige Bobbycar-Rennstrecke sein…

UPDATE 27. Februar 2020: Und wenn der Einbau der Fußbodenheizung dann begonnen hat, sieht es so aus – hat fast etwas von Kunst am Bau:

