Es ist nicht ganz klar, wer sich mehr freut: Der fünfjährige Jack, dass all sein Spielzeug endlich in einem eigenen Zimmer steht. Oder die Eltern, die nun so praktische Dinge wie eine Abstellkammer, einen großen Flur und zwei Bäder genießen. Nur der einjährigen Aurora sind die Veränderungen egal – noch. In spätestens zwölf Jahren wird sie sich über ihr eigenes Ankleidezimmer freuen…
Für Stefan und Caroline Kraft ist im Familienwohnareal Albrecht-Thaer-Straße ein Traum wahr geworden. Ihre Dreiraumwohnung wurde mit der benachbarten Einraumwohnung zusammengelegt. Nun wohnt die vierköpfige Familie in einer rund 90 Quadratmeter großen Vierraumwohnung. „Wir freuen uns total“, sagt Stefan Kraft. „Es ist prima, dass das möglich wurde.“
Zweieinhalb Monate waren die Handwerker im Spätsommer im Haushalt der jungen Leute. Die sind für die Bauphase zu den Eltern ausgewichen. „Das war irgendwie auch mal wieder schön“, sagt Caroline Kraft. Gemeinsam essen, gemeinsam kochen, richtig viel Zeit miteinander haben. Während zuhause alles nach den Wünschen der jungen Eltern gestaltet wurde. KommWohnen-Bauingenieurin Andrea Teegler hat unzählige Absprachen mit Mietern und Handwerkern getroffen, immer neue Details geklärt. Denn natürlich ergibt sich während des Baus die ein oder andere Sache erst.
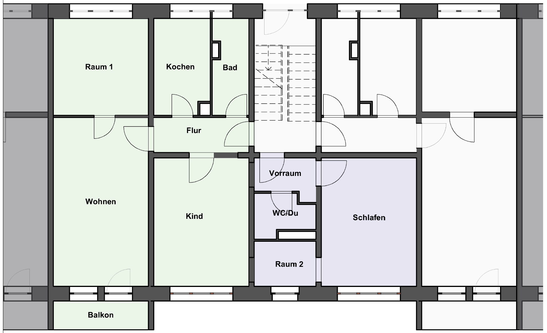
Warum nicht zum Beispiel eines der Kinderzimmer etwas kleiner gestalten, damit der Flur breiter wird und ein Abstellraum entsteht? Gesagt, getan. Und warum nicht dem jetzt kleineren Kinderzimmer einen Nebenraum für die sperrigen Schränke geben, damit noch ausreichend Platz zum Spielen ist? Ebenfalls getan. „Das bedeutete einen zweiten Durchbruch zur benachbarten Wohnung“, erinnert sich Stefan Kraft. „Wir sind sehr dankbar, dass auch das möglich war. Sonst wären die Kinderzimmer sehr ungleich groß gewesen. Und wer weiß, wie unsere Kinder das irgendwann gefunden hätten…?“, meint er fröhlich.
Vorher:

Nachher:

Fürs zweite Bad wurde sogar eine Wand versetzt, damit die Badewanne Platz hat. Bisher hatte die Wohnung nur eine bodengleiche Dusche. Und es hat sich gelohnt. „Das erste Mal Baden war für uns alle ein Highlight“, sagt Caroline Kraft. Die beiden sind froh, dass auf all ihre Wünsche eingegangen wurde. Bis hin zur Position von Steckdosen. Auch die von Krafts besorgten Spots für die Flurdecke hat der Elektriker gleich mit eingebaut.


Seit fünf Jahren wohnt Familie Kraft an der Albrecht-Thaer-Straße. Die beiden gebürtigen Görlitzer haben ein paar Jahre lang im Erzgebirge gelebt. Richtig dörflich, wie sie sagen, alle Wege mit Auto. Dass das nun, zurück in Görlitz, nicht mehr nötig ist, genießen beide sehr. Genauso wie die Nachbarschaft mit vielen anderen jungen Familien in dem Areal zwischen Weinhübel und Biesnitz.

Mit dem zweiten Kind kam der Wunsch nach mehr Platz. Die beiden Kinder haben früh im selben Zimmer geschlafen, der große Bruder musste immer leise sein am Abend. Und natürlich ist nicht jedes Spielzeug eines Fünfjährigen für ein Krabbelkind geeignet. Da war das Mitschrauben beim Aufbau der neuen Möbel für Jack wie der Aufbruch in eine neue Zeit. Spielzeug stehen lassen, wie schön! Papa Stefan ist derweil am meisten überrascht vom Luxus eines großen Flurs. „Hätte ich vorher nicht gedacht, wie praktisch das ist. Der viele Platz zum Anziehen allein!“ Und Hündin Marlen hat auch einen schöneren Platz als früher.
Die Zusammenlegung von benachbarten Wohnungen ist ein Vorgehen, das KommWohnen immer häufiger nutzt. So sind in diesem Jahr auch eine Fünfraum- und sogar eine Sechsraumwohnung in Königshufen entstanden, zudem eine Fünfraumwohnung in Weinhübel. Alle waren schnell vermietet bzw. wurden wegen Wünschen von bereits dort wohnenden Mietern geschaffen. Was sagt uns das? Wir machen weiter!